CEFA Daycare Brentwood

  • Category: Commercial
  • Address: 4664 Lougheed Hwy
  • Date: 2016

A daycare retrofit within an existing office building provides much-needed childcare capacity to a neighbourhood undergoing rapid intensification.

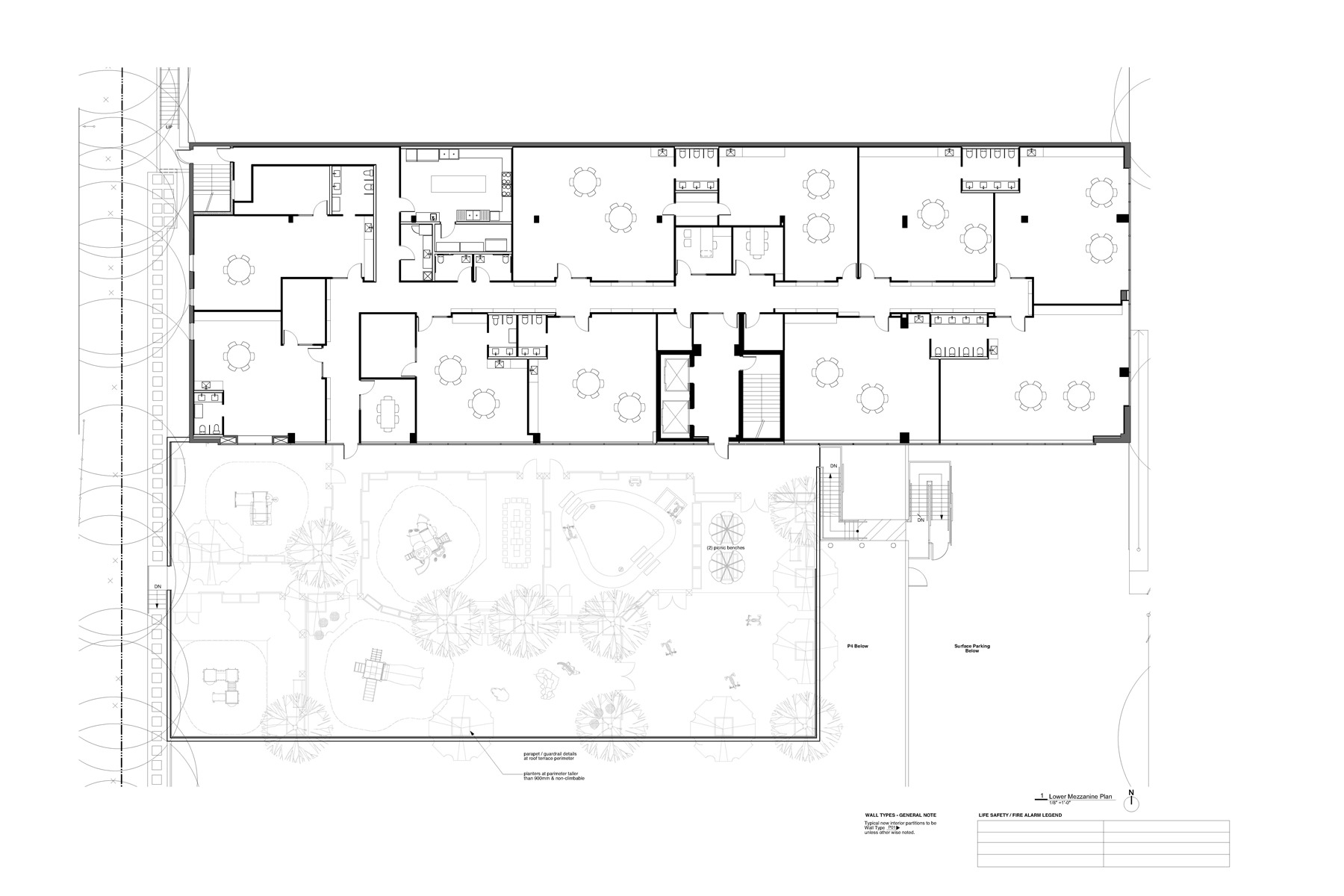
CEFA Brentwood provides licensed daycare for 152 children aged 18 months to 6 years. The facility is located in a large office building in a 12,500 square-foot suite with an adjacent 8,700 square-foot roof deck.

The project required rezoning, development, and building permits and conformed to CEFA design standards and Fraser Health’s licensed daycare requirements. As part of the project, alterations were made to the base building and existing parking areas to allow for safe and accessible drop-off and pick-up and to demarcate the entry to the childcare.

The project interiors include a kitchen, gross motor playroom, offices, and family area. The roof deck was transformed into a series of separated outdoor play areas designed for specific numbers of children and age groups.

All Commercial Community Housing Placemaking Urban Design